수원 화성 동탄 지식산업센터 네트워크 연결 공사 신규 사무실 책상 컴퓨터 선정리_인터넷선 연결_공유기 허브설치
수원시 권선구 탑동에 위치한
"수원컴퓨터" 입니다
현자리 22년째 운영 중 입니다

화성 동탄 현대실리콘앨리 지식산업센터 신규 사무실 네트워크 공사_책상 컴퓨터 선정리


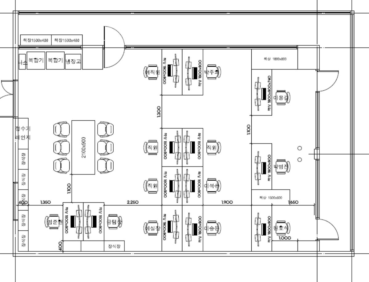
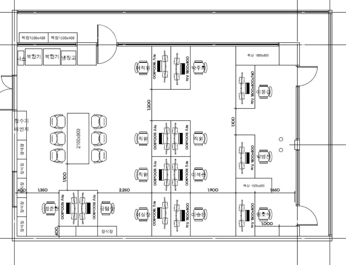
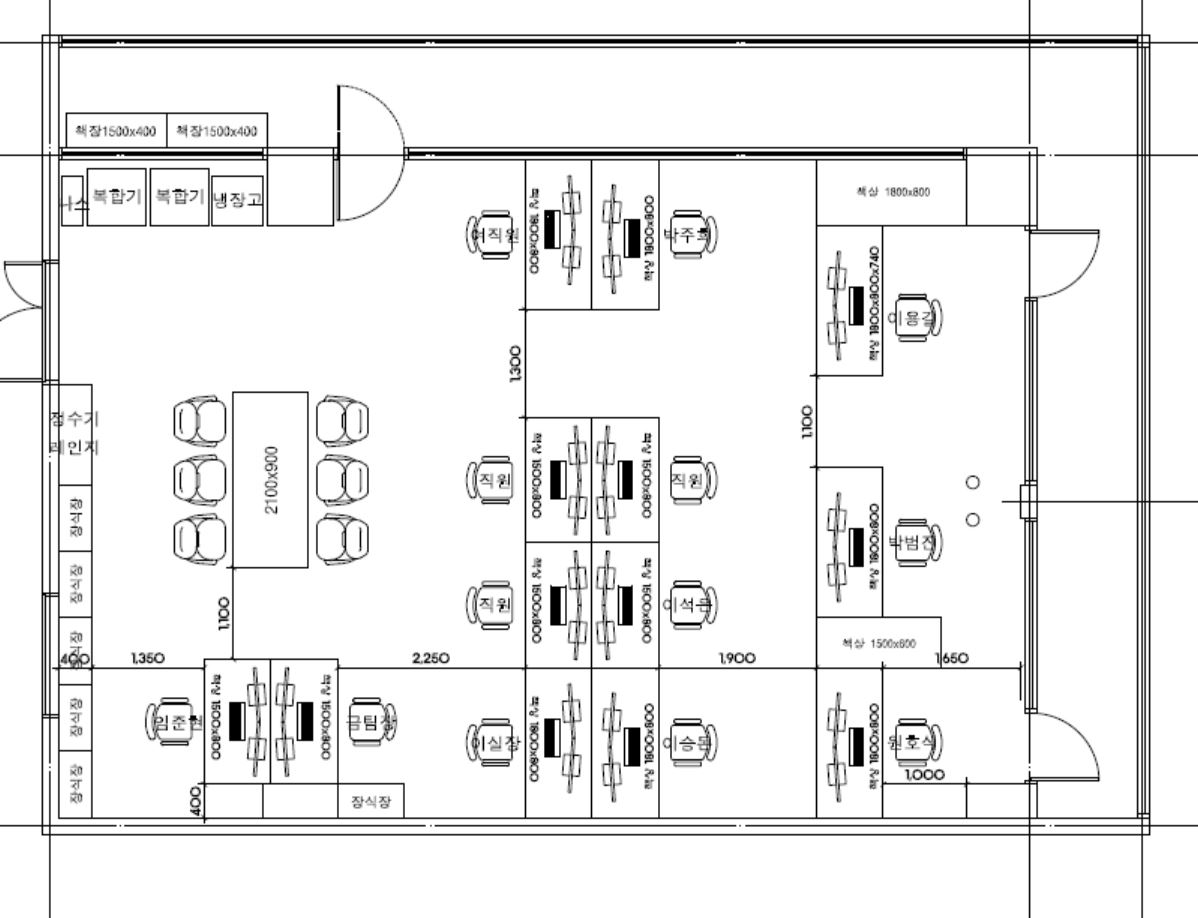
업체에서 미리 도면을 보내 주셨습니다
(책상 배치 도면)
대략 메인 인터넷선에서 공유기 연결해서
기가비트 16포트/24포트 허브 사용해서
인터넷선 도포 하면 될거 같은데..
현장 상황은 항상 틀립니다..
음..바닥에 시스템박스가 있네요..
동탄에 위치한 지식산업센터
두칸을 사용하는 사무실 입니다
일단 담당하시는분과 협의중..
...
16포트나/24포트 허브를 이용해서 바닥으로 몰딩
&
시스템박스를 각각 사용해서 사용
담당분께서 대표이사님이 지저분한걸 싫어 하신다고 합니다
음.. 시스템박스를 사용해서 각각 사용하기로 했습니다
시스템박스 위치가 우연치 않게?
책상 위치랑 비슷하게 위치해 있습니다


일정이 잡기가 에메하네요..
이사 당일날 처리하기 힘들거 같아서
겸사겸사 한번 방문해서 천장 작업을 미리 하기로 했습니다
좌/우 단자함
우측이 메인 단자함 (인터넷회선)


바닥 시스템박스
전원 2구 / 전화선1포트 / 인터넷선 1포트
인터넷 단자함 병합 설치 천장공사

천장으로 인터넷선 / 전원선을 끌어줘야 합니다
좌측은 인터넷 / 우측은 인터넷선+전원선
메인 단자함 허브 8포트 설치
(인터넷 메인 + 공유기 + 허브 8포트)
좌측 단자함은 허브 5포트
우측은 전원선+허브 5포트
복합기 2대 / 나스 1대 / 인터넷전화(FAX)
사용할 예정입니다


단자함 내부 천장으로 네트워크 요비선으로
살살 작업해 주면 됩니다



우측까지 천장으로 작업
신축 건물이라~
천장 상태는 깨끗 하네요



우측 복합기 들어가는 부분 입니다
전원코드 연결 할 부분이 없어서
전원코드까지 만들어 주고
5포트 스위칭 기가비트 허브 설치
몰딩으로 깔끔하게 마무리 합니다



혹시 모르는거라 테스터기로 좌우 연결한
인터넷선을 체크합니다

메인 단자함 8포트 스위칭 기가비트 허브
추후 메인 인터넷 / 공유기도 설치해야 해서
상단에 설치해 줍니다


바닥 시스템박스 표기가 안되어 있어서
테스트기로 체크 해면서 마킹


동탄 지식산업센터 컴퓨터 네트워크 연결 사무실 이전 컴퓨터 책상 선 정리 컴퓨터 설치




좌측 단자함 5포트 허브
우측 단자함 8포트 허브
우측 메인단자함에는 멀티탭도 설치

작업 후 메인박스 열어놓고 (사진) 담담자 전송
(인터넷 설치 때문에 꼭~ 체크 해야 합니다)
입구 전단지 등등 주변 정리 후 천장 네트워크 포설 마무리
이제 업체 이사 후..
네트워크 및 컴퓨터/모니터 설치 및 선정리를 해야 합니다
아무래도 야간 작업을 해야 할거 같습니다
이사/정리 하면 시간이 대략 오후 5~6시
다음날 컴퓨터를 사용해야 하기 때문에
어느정도 마무리까지 해야 합니다



입주...책상이 복합기 등등 대부분 들어온 상태 입니다
문제는? 인터넷 설치가 다음날 된다고 하네요
컴퓨터 책상 선정리 (인터넷선+모니터선+키보드선+마우스선)
일단 공유기 설치등 복합기 인쇄까지 되는거 확인하고
컴퓨터 설치 선정리 까지


음.. 모니터 32인치 듀얼모니터 모니터 암으로 구성
고정해서 사용하는 제품은 모니터 다리쪽으로 정리하고
모니터를 위아래로 움직이시는 분들은 별도로 케이블로만 고정

샘플작업 몰딩등 대략 이런식으로 작업 진행..
대표이사님 OK 있어야 한다고 합니다
ㅡㅡ;; 비용 추가되는 소리가 들리시죠
컴퓨터 선정리 시간도 많이 걸리고 몰딩 자재로 할 건지
아니면 케이블 고정타이로 하는지에 따라 부품 금액 차이도 있습니다
그리고 하단부 벽돌..있고 없고 차이가 크네요 ^^
OK 승인나고 작업 시작~!! 직원분들은 퇴근..하..

평소 이런 모습들이 많습니다
책상 아래에서 작업하는거라 허리/목 무지하게 아프네요



몰딩의 경우 모니터 아답터가 있는 경우
몰딩폭이 조금 큰 제품이 들어 갑니다
아답터 책상 하단부로 깔끔하게 정리 합니다
별거 아닌거 같지만 해보면 알아요
절대 만만치 않은 작업
☆☆☆☆☆☆
네트워크 포설 작업 보다 힘듬



중앙 책상 컴퓨터 6대 사용하는 자리 입니다
멀티탭 2개는 고용량 제품으로 멀티탭 1개에 3대 분활 합니다
요즘 컴퓨터 성능이 좋아지면서 작업하는 용도에 따라
전압을 많이 사용 합니다
특히 겨울에 난방 제품 같이 사용하는 경우
아차 하는 순간 멀티탭 차단 됩니다
그러면 컴퓨터 꺼지고 작업 하던거 다 날라가고...
여차 저차 새벽까지..ㅜㅡㅜ
인터넷만 연결하면 바로 사용 할 수 있게 조취하고 마무리 합니다
...
다음날 인터넷 연결하고 별다른 이상 없다고 연락 왔고
마무리 작업하러 한번 더 들어 가야 합니다


회의 테이블도 들어오고 컴퓨터 추가된 곳도 있고



인터넷 전화 팩스 설치하고 저리 가셨네요..
다시 한번 정리 하고..



컴퓨터 추가된 부분
모니터 전원선을 크로스..



추후 컴퓨터 추가될 곳 선정리하고 마무리 했는데..?
인터넷 속도가 느리다고 합니다

인터넷은 기가 회선으로 신청했는데 속도는
100M 속도네요 ?

단자함..메인 테스트..기가 속도 나오고..
공유기 연결 속도가 안나옵니다
기가 공유기 인데..?
혹시나 해서 연결 케이블등 확인하는 찰나
메인에서 공유기로 연결되는 인터넷선이 살짝 연결되어 있는 느낌?
다시 인터넷 속도 체크..잘되네요 ^^;;

정상적인 속도


혹시나 해서 모든 컴퓨터 다 체크 합니다
컴퓨터 한대만 ? 인터넷 속도가 100M..?
바닥 시스템박스에서 다이렉트로 연결하면
정상..
인터넷 전화기 PC로 연결된 인터넷선이 문제
(교체 후 정상)
어찌 어찌 마무리 했는데
네트워크 설치 비용보다
컴퓨터 선정리는 비용이 더 많이 나온건 비밀..
컴퓨터 선정리등은 가능 하면 업무 외 시간에
작업하는걸 추천 드립니다
시간이 생각보다 많이 소요됩니다
조립 컴퓨터 판매 수리 / 노트북 판매 수리 / 프린터 복합기 렌탈 등
노트북 업그레이드등 컴퓨터관련 모든 업무를 하고 있습니다
궁금사항 언제든지~! 문의 주세요
